Кемерово, Радуга м-н, Институтская, 30/3 стр
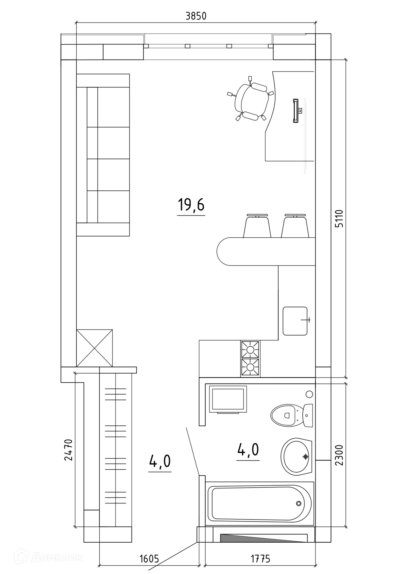
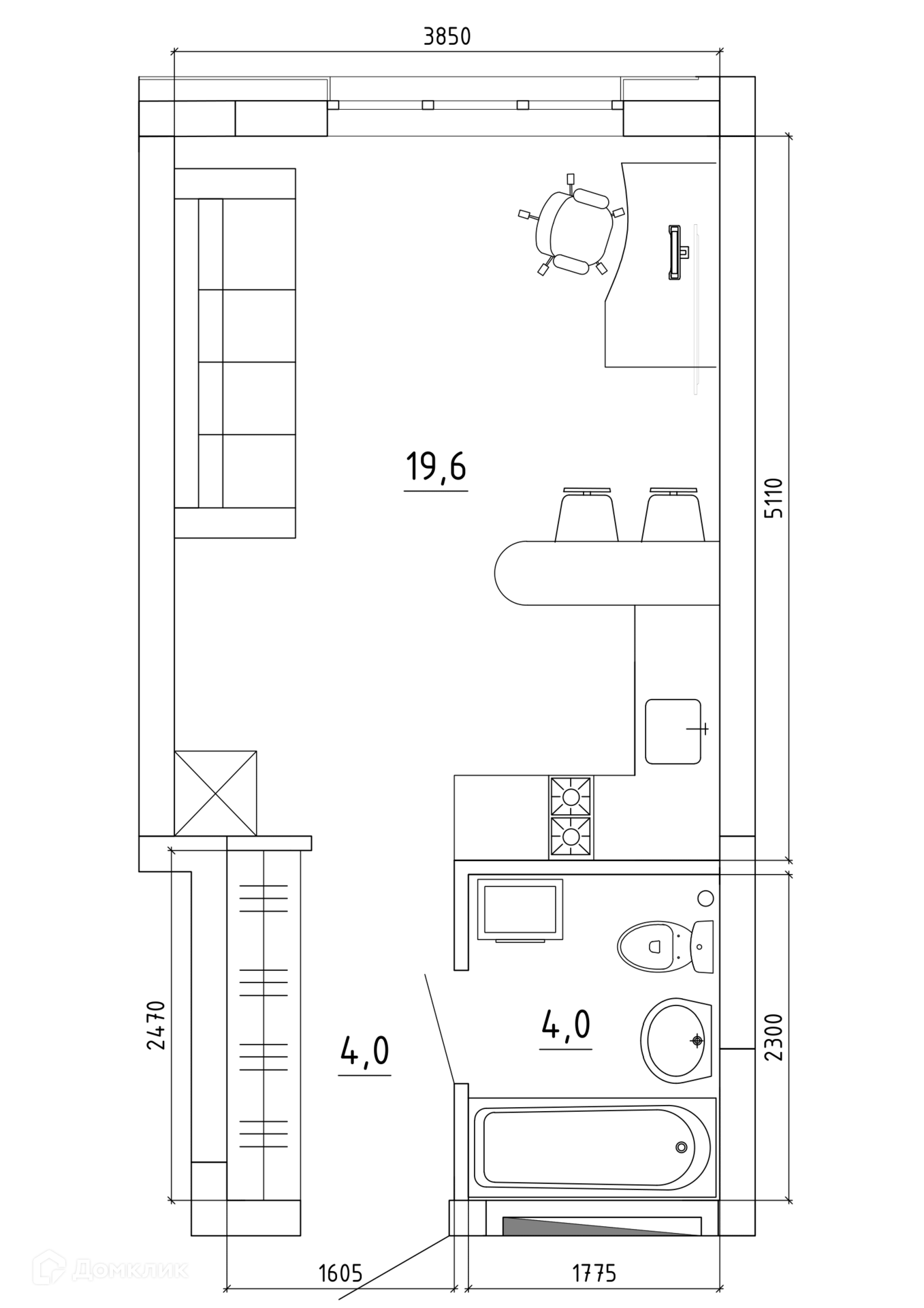
Площадь
Жилая
Кухня
Отделка
Класс жилья
Комнат
Номер кв.
Этаж
В продаже 1-комнатная квартира в современном жилом комплексе "ЖК "ЧЕМПИОН ПАРК"" 🏢. Квартира расположена на 6-м этаже 16-этажного дома. Прекрасный выбор для семьи.
Для бесплатного бронирования и зафиксировать цену — свяжитесь с нами прямо сейчас! 📞
Первый жилой комплекс класса бизнес-лайт в г. Кемерово Завершение строительства второй очереди – I кв. 2026 г. ЖК "Чемпион-парк" - это три 15-этажных дома, образующих единое пространство, где все продумано для комфорта жителей. «Чемпион парк» строится в Рудничном районе, на новой части Институтской улицы. Он расположен рядом с главной транспортной артерией района – проспектом Шахтеров, благодаря которому можно добраться до центра города всего за 15 минут в любое время суток. Дом класса бизнес-лайт Квартиры от 28 до 113 м2 Закрытая и безопасная внутренняя территория Уникальность проекта в его эксклюзивности, безопасности и разнообразном наполнении: Премиальная отделка входных групп Центральный вестибюль более 100 м2, с высотой потолка 4,8 м. Более 120 камер видеонаблюдения, приватный зеленый двор Круглосуточная служба контроля доступа и безопасности Супермаркет "SPAR", пиццерия "Печь", аптека, офисы, пункты выдачи и много другое на первых этажах под управлением Застройщика Бесплатный фитнес-зал только для жителей. С беговыми дорожками, эллипсом, силовой зоной и комнатой йоги Кофейня и зона библиотеки с коворкингом Детская комната для празднования дней рождений. Только для жителей комплекса Дополнительная благоустроенная зона соснового бора и парка Дружбы, с игровыми площадками и скейт-парком Отдельная от входной группы зона загрузки в лифт строительных материалов Nеплый подземный паркинг на 69 машиномест с индивидуальными инвентарными комнатами Колясочные и велопарковки в отдельном и чистом помещении паркинга Собственная управляющая компания Архитектурные особенности ЖК "Чемпион парк": ✅ Современная архитектура и вечерняя подсветка фасадов ✅ Монолитный каркас с кирпичным заполнением. ✅ Застекленные лоджии ✅ Панорамные окна ✅ Свободные планировки Приватная внутренняя территория: ✅ Комплексные игровые площадки для детей ✅ Двор без машин ✅ Ландшафтное озеленение Спортивный кластер в сосновом бору, в 50 метрах от комплекса: ✅ многофункциональная спортивная площадка ✅ зона воркаута ✅ скейт-парк ✅ велопешеходный маршрут. Развитая инфраструктура Рудничного района: Школы и детские сады рядом с домом 5 минут до торговых центров «Радуга», «РИО», «Север» Прямо напротив нетронутый зеленый бор 1,5 км до Рудничного бора Благоустроенные прогулочные зоны, Аллея Дружбы пентхаусы на последних этажах от 4 квартир на этаже самая высокая точка в Кемерово, весь город как на ладони «Приватная внутренняя территория» , за счет выноса всех активных игровых площадок за пределы двора будет идеальное место для детей до 5 лет, мам с колясками и зон отдыха для всех жителей. samoletplus-1178450
Срок сдачи: 1 кв. 2025 г.
Срок сдачи: 1 кв. 2025 г.
Площади квартир
Этажность
Класс жилья
Корпусов
Стены