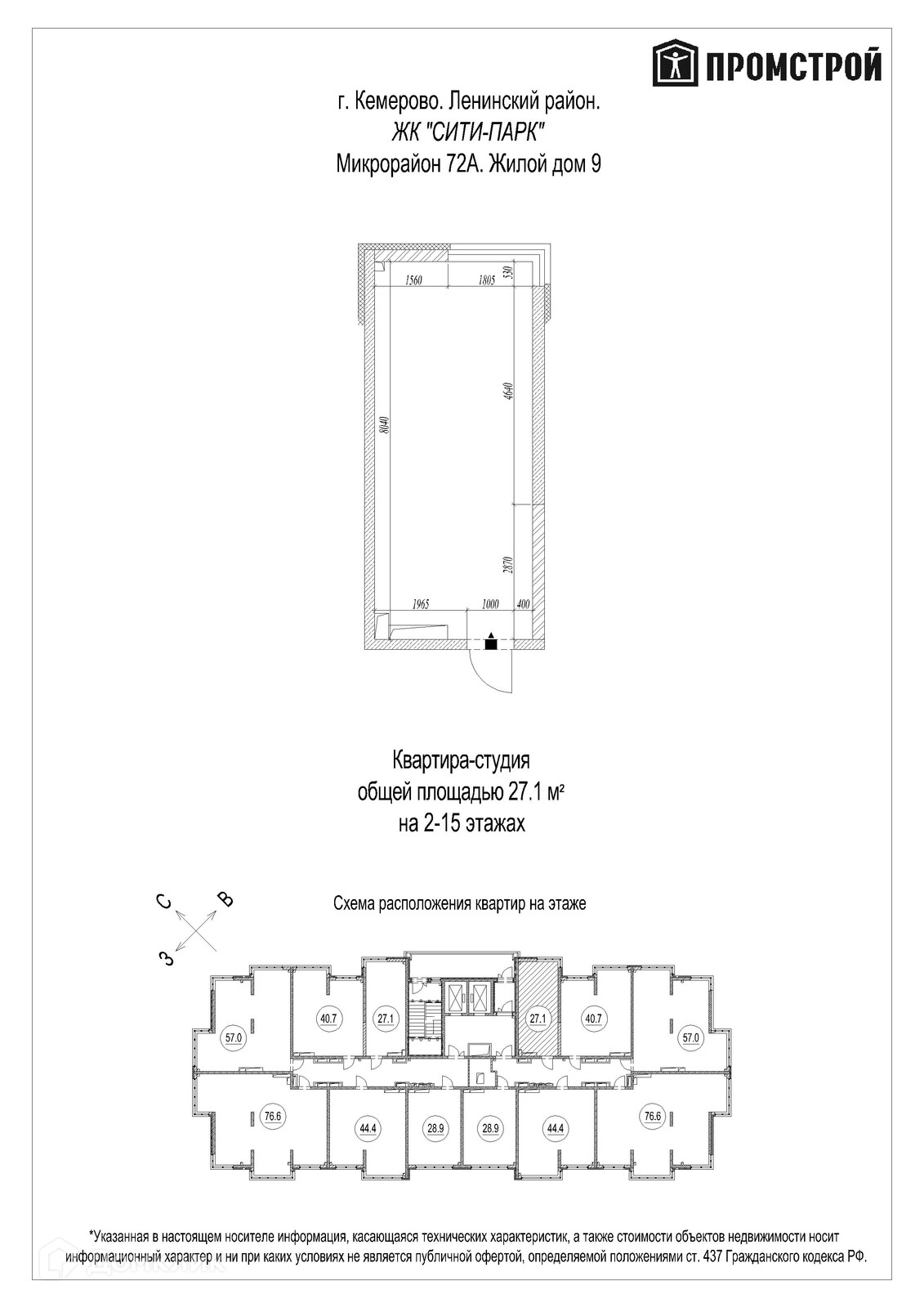
Кемерово, 72а м-н, 9 стр
Площадь
Жилая
Кухня
Отделка
Класс жилья
Номер кв.
Этаж
Доступна к покупке Студия в востребованном жилом комплексе "ЖК "Сити-парк"" 🏢. Квартира расположена на 15-м этаже 16-этажного дома. Прекрасный выбор для инвестиций.
Чтобы забронировать эту квартиру бесплатно и проверить актуальную стоимость — позвоните нам прямо сейчас! 📞
«Сити-парк» — уютный жилой комплекс, расположенный в перспективном, быстрорастущем районе города. Выгодная локация позволяет легко добраться до любой точки Кемерова, а также выехать загород. Вы можете выбрать различные планировки: от уютных студий до просторных трёхкомнатных квартир. А благодаря разнообразию планировочных решений, легко найдёте тот самый вариант. Комплекс состоит из 10 многоквартирных домов с внутренним двором, который закрыт от машин для безопасности и удобства пешеходов. Здесь же расположены: детский сад, спортивные и игровые площадки с современным покрытием, широкие велодорожки, места для спокойного семейного отдыха. По периметру ЖК для автовладельцев построены парковки с достаточным количеством мест — вы всегда свободно сможете поставить свой автомобиль. В домах расположены просторные, светлые холлы, установлены скоростные лифты и энергосберегающие приспособления.
Срок сдачи: 3 кв. 2024 г.
Срок сдачи: 3 кв. 2024 г.
Площади квартир
Этажность
Класс жилья
Корпусов
Стены